Puukattilat – taloudellinen, luotettava ja perinteinen lämmitys koteihin ja yrityksiin
Puukattilat – taloudellinen, luotettava ja perinteinen lämmitys koteihin ja yrityksiin
Lämmitys puulla on edelleen yksi vakaimmista ja taloudellisesti perustelluista ratkaisuista kotitalouksille. Vaihtelevien energian hintojen ja markkinoiden epävarmuuden aikoina monet kotitalouksien ja suurempien kiinteistöjen omistajat etsivät luotettavaa järjestelmää, joka tarjoaa korkean suorituskyvyn, ennustettavat kustannukset ja pitkäaikaisen toiminnan. Tästä syystä Puukattilat säilyttävät tärkeän paikan suosituimpien lämmitysratkaisujen joukossa.
Tämän tyyppinen lämmitys tunnetaan korkeasta hyötysuhteesta, kun teho valitaan oikein ja asennus on asianmukaisesti suunniteltu. Lisäetu on polttopuun saatavuus monilla alueilla, mikä helpottaa käyttökustannusten suunnittelua. Hyvällä huollolla ja oikealla käytöllä puukattila voi tarjota vakaan lämmityksen useiden vuosien ajan ilman monimutkaista automatiikkaa tai kallista infrastruktuuria.
.png)
Mikä on puukattila
Puukattila on keskuslämmitysjärjestelmän lämmityslaite, joka käyttää kiinteää polttoainetta (polttopuuta) veden lämmittämiseen. Lämmitetty vesi kiertää putkistossa pattereihin tai lattialämmitykseen, tarjoten tasaisen lämpötilan koko rakennukseen.
Toisin kuin tavalliset uunit ja takat, kattila on suunniteltu lämmittämään koko taloa tai kiinteistöä, ei vain yhtä huonetta. Se toimii pääasiallisena lämmönlähteenä ja voidaan yhdistää varaajaan tehokkuuden parantamiseksi ja harvemman polttoaineen täytön mahdollistamiseksi. Mallista ja rakenteesta riippuen kattilat voivat tarjota eri tasoisia hyötysuhteita ja palamisen ohjausmahdollisuuksia. Modernit ratkaisut on suunniteltu optimoimaan puun palamista ja vähentämään lämpöhäviöitä, mikä tekee niistä sopivia sekä uudisrakennuksiin että olemassa olevien lämmitysjärjestelmien päivitykseen.

Kuinka puukattila toimii
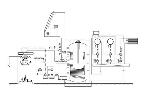
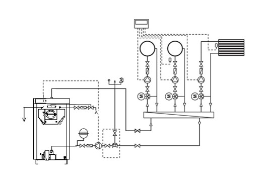
Puukattilan toimintaperiaate perustuu kiinteän polttoaineen polttamiseen ja syntyneen lämmön siirtämiseen vesitilaan (lämmönvaihdin). Kun polttopuu sytytetään, syntyy lämpöä, jota käytetään veden lämmittämiseen kattilassa. Kiertopumppu jakaa kuuman veden lämmitysjärjestelmään, jonka jälkeen jäähtynyt vesi palaa kattilaan uudelleen lämmitystä varten.
Modernit mallit voidaan jakaa useisiin päätyyppeihin:
- Vakio kattilat luonnollisella vedolla
- Kattilat puhaltimella pakotettua vetoa varten
- Pyrolyysi (kaasutus) kattilat korkeamman hyötysuhteen saavuttamiseksi
Pyrolyysikattilat varmistavat puukaasun täydellisemmän palamisen, mikä johtaa alhaisempaan polttoaineen kulutukseen ja pienempiin päästöihin.


Sopivat käyttökohteet puukattiloille
Puukattilat soveltuvat kiinteistöihin, joissa on vesikiertoinen lämmitysjärjestelmä. Ne ovat yleisimmin käytössä:
- Omakotitaloissa
- Villoissa ja maaseutukiinteistöissä
- Pienissä kerrostaloissa
- Työpajoissa ja varastoissa
- Teollisuushalleissa
- Julkisissa rakennuksissa alueilla ilman kaasuliittymää
Ne ovat erityisen tehokkaita alueilla, joilla polttopuu on helposti saatavilla ja kustannustehokasta.
Kuinka valita oikea teho
Oikean tehon valinta on yksi tärkeimmistä tekijöistä kattilaa hankittaessa. Riittämätön teho ei tarjoa riittävää mukavuutta, kun taas liiallinen teho johtaa tehottomaan toimintaan ja turhaan polttoaineen kulutukseen.
Seuraavat tekijät otetaan huomioon tarvittavaa tehoa määritettäessä:
- Kokonaislattia-ala
- Kattokorkeus
- Lämpöeristys
- Ikkunoiden ja ovien tyyppi
- Ilmastovyöhyke
Yleisenä ohjenuorana 1 kW tehoa voi lämmittää noin 10 m² hyvällä eristyksellä ja normaalilla kattokorkeudella. Esimerkiksi 150 m² taloon suositellaan yleensä 15–20 kW tehoa.
Puukattiloiden tärkeimmät edut
Puukattilat ovat suosittuja useiden keskeisten etujen vuoksi. Ne tarjoavat taloudellista lämmitystä ja pitkän käyttöiän, erityisesti laadukkaasta teräksestä valmistettuina.
Tärkeimmät hyötynsä ovat:
- Alhaiset polttoainekustannukset
- Korkea lämmitysteho
- Sopivat suurille alueille
- Suhteellinen riippumattomuus energian toimittajista
- Alhaisempi alkuinvestointi verrattuna automatisoituihin järjestelmiin, kuten Pellettikattilat tai täydet Pellettikattilat (sarjat)
Haitat, jotka on otettava huomioon
Huolimatta eduistaan, puukattilat vaativat enemmän käyttäjän osallistumista. Ne eivät ole täysin automatisoituja ja tarvitsevat säännöllistä huoltoa.
Tärkeimmät haitat ovat:
- Polttoaineen manuaalinen lataus
- Tarve polttopuun varastointitilalle
- Jäännöstuhkan säännöllinen poisto
- Alhaisempi mukavuustaso verrattuna pellettipohjaisiin järjestelmiin, kuten Vesikiertoinen pellettitakat
Ero puukattilan ja pellettikattilan välillä
Pellettikattilat ovat moderni vaihtoehto perinteisille Puukattilat -järjestelmille. Tärkein ero liittyy automaation tasoon ja polttoaineen syöttötapaan.
Puukattila täytetään manuaalisesti ja sitä on seurattava säännöllisesti. Alkuinvestointi on yleensä alhaisempi, ja polttoaine on usein edullisempaa ja helpommin saatavilla.
Pellettikattila sisältää automaattisen polttoaineen syötön, elektronisen ohjauksen ja ohjelmoitavat toimintatilat. Tämä tarjoaa korkeampaa mukavuutta ja tarkempaa lämpötilan hallintaa, mutta alkuinvestointi on suurempi.
Valinta näiden kahden vaihtoehdon välillä riippuu budjetista, halutusta automaatiotasosta ja polttoaineen saatavuudesta alueella.
Ero puukattilan ja vesikiertoisen pellettitakan välillä
Vesikiertoinen pellettitakat voidaan myös liittää lämmitysjärjestelmään, mutta niiden teho on yleensä alhaisempi ja ne yhdistävät pääasiassa lämmityksen koristeelliseen funktioon.
Puukattilat on suunniteltu ensisijaisesti koko rakennuksen jatkuvaan ja tehokkaaseen lämmitykseen, tarjoten suuremman tehon ja paremman hyötysuhteen pitkäaikaisessa käytössä.
Mitä tarkistaa ennen ostoa
Ennen lopullista päätöstä on tärkeää kiinnittää huomiota teknisiin ominaisuuksiin ja valmistuslaatuun.
Tärkeimmät huomioon otettavat parametrit ovat:
- Nimellisteho (kW)
- Hyötysuhde (lämpötehokkuus)
- Teräksen paksuus
- Polttokammion tyyppi
- Puhaltimen olemassaolo
- Yhteensopivuus varaajan kanssa
- Takuu- ja huoltoehtojen kattavuus
Mikä polttopuu on sopivin
Puukattilan tehokkuus riippuu paitsi mallista myös käytetyn polttoaineen laadusta. Parhaat tulokset saavutetaan kuivilla, kovilla puulajeilla, kuten:
- Tammi
- Lehmus
- Hieskoivu
Polttopuun kosteusprosentin tulisi olla alle 20%, koska märkä puu heikentää tehokkuutta ja lisää nokin kertymistä.

Usein kysytyt kysymykset (FAQ)
Kuinka usein puukattila täytetään?
Tyypillisesti täyttö on tarpeen 3–6 tunnin välein, riippuen kattilan tehosta, ulkolämpötilasta ja rakennuksen eristyksestä.
Voiko puukattila toimia ilman sähköä?
Jotkut luonnollisella kiertoilmalla toimivat mallit voivat toimia ilman sähköä, mutta suurin osa järjestelmistä käyttää kiertopumppua ja tarvitsee sähkösyötön.
Tarvitaanko erityinen savupiippu?
Kyllä, oikein mitoitetulla savupiipulla on tärkeä rooli hyvän vedon ja turvallisen käytön varmistamiseksi.
Mikä on kattilan käyttöikä?
Kuinka paljon polttopuuta tarvitaan yhdelle lämmityskaudelle?
Keskimäärin 120–150 m² talo tarvitsee 8–15 kuutiometriä polttopuuta riippuen eristyksen laadusta ja ilmastosta.
Puukattilat ovat edelleen käytännöllinen ja taloudellinen lämmitysratkaisu, erityisesti alueilla ilman kaasuliittymää. Ne tarjoavat korkean tehon ja suhteellisen alhaiset käyttökustannukset, mutta vaativat enemmän käyttäjän osallistumista.
Oikea valinta riippuu kiinteistön koosta, käytettävissä olevasta budjetista ja halutusta mukavuustasosta. Oikein valittuna ja ammattimaisesti asennettuna puukattila voi tarjota luotettavaa lämmitystä moniksi vuosiksi.
Katso myös:



